Immeuble
Guingamp 22
Opportunité Investisseur : Immeuble de Rapport à Fort Potentiel – 550 m²
Prix : 212 000 € FAI (Frais d'Agence Inclus)
À la recherche d'un projet d'envergure ?
Découvrez cet ensemble immobilier offrant des volumes rares et de multiples possibilités d'aménagement, situé en centre ville de Guingamp
Caractéristiques Principales :
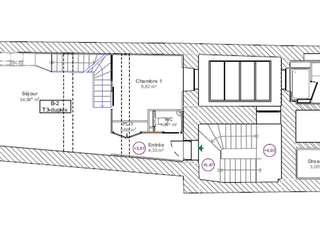
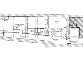
Surface totale : Plus de 550 m² environ
Configuration : Répartis sur 4 niveaux (beaux volumes, plateaux modulables).
Rez-de-chaussée : Une surface commerciale de plus de 100 m² environ (idéale pour boutique, bureaux ou transformation en logements).
Extérieur : Un immense parking privatif d'environ 2 000 m² (atout majeur pour le stationnement des locataires ou une exploitation commerciale).
État du Bien :
L'immeuble est à restaurer entièrement. C'est une véritable page blanche qui vous permet de :
Créer plusieurs appartements (déficit foncier possible).
Réhabiliter le commerce avec une visibilité optimale.
Valoriser le terrain attenant.
Ce bien s'adresse aux profils avertis, entrepreneurs ou investisseurs cherchant à maximiser leur rendement via une rénovation globale.
Contactez-moi dès maintenant pour organiser une visite et étudier la faisabilité de votre projet. Les honoraires d'agence sont à la charge de l'acquéreur, […] Voir l’annonce immobilière >>




















