Immeuble
Perpignan 66
iad France - Rémi Perez vous propose: Nouveauté sur Perpignan, secteur Kennedy.
Immeuble de rapport idéal pour un premier investissement, offrant une configuration simple, rentable et évolutive, avec aucune copropriété, aucun syndic et donc aucune charge.
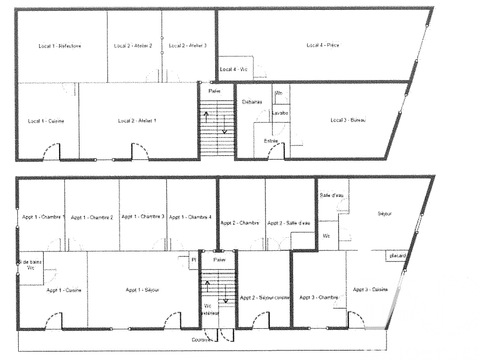
L’immeuble se compose, au rez-de-chaussée, d’un local de 50 m², vendu libre de toute occupation. Il comprend une grande pièce d’accueil, une pièce kitchenette fermée pouvant facilement être ouverte, ainsi qu’un accès sur un jardin arrière à aménager. Cet espace offre de nombreuses possibilités d’exploitation, aussi bien en activité professionnelle qu’en projet locatif. Anciennement exploité en salon de coiffure, il peut facilement être repensé pour différents usages, notamment en location courte durée type love room, en local professionnel ou en aménagement locatif longue durée selon votre stratégie.
À l’étage, vous retrouvez un appartement T2 entièrement rénové avec terrasse, actuellement loué dans le cadre d’un bail non meublé débuté le 23/12/2025, avec une durée réduite à un an, tel que prévu au bail. Il génère actuellement un revenu de 500 € par mois hors charges. L’appartement est entièrement équipé de double vitrage et dispose d’un split de climatisation réversible, garantissant un bon confort locatif.
Les compteurs du local et de l’appartement sont parfaitement dissociés, permettant une gestion simple et indépendante de chaque lot.
Cet immeuble représente une opportunité particulièrement intéressante pour un investisseur recherchant un bien sans charges, avec une rentabilité immédiate et un fort potentiel d’optimisation. La configuration permet de sécuriser un revenu existant tout en valorisant rapidement le rez-de-chaussée selon le projet retenu.
Taxe foncière (2024) : 1540 €
Honoraires d'agence à la charge du vendeur.
Information d'affichage énergétique sur ce bien : classe ENERGIE C indice 142 et classe CLIMAT C indice 11. Les informations sur les risques auxquels […] Voir l’annonce immobilière >>






