Votre Immeuble à Perpignan avec ouestfrance-immo.

Vente Immeuble à Perpignan

270㎡
A rénover

250 000 € (926 €/m²)

Vente Immeuble à Perpignan

270㎡
A rénover

250 000 € (926 €/m²)

Immeuble Perpignan

iad France - Vanessa Irain vous propose: PERPIGNAN - Surface à fort potentiel – Usage habitation ou investissement locatif

Idéalement situé sur l’avenue Général de Gaulle à Perpignan, cet ancien hôtel offre aujourd’hui une opportunité rare de transformation en habitation, suite à un avis favorable de la mairie pour l’installation de compteurs électriques individuels.

L’immeuble deux faces traversant avec 3 ouvertures par faces, se compose :

• En rez-de-chaussée : un hall d’entrée desservant une pièce indépendante à l’arrière

• En sous-sol : 5 caves

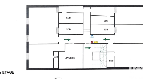
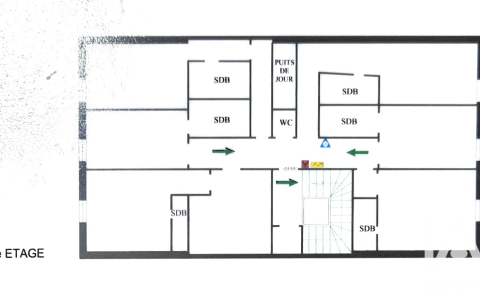
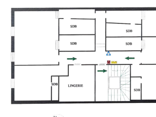
• Aux étages : deux plateaux d’environ 120 m² chacun, actuellement aménagés en chambres d’hôtel

De nombreuses possibilités s’offrent à vous :

• Création de deux grands appartements (environ 120m2)

• Division en deux appartements par étage pour un projet locatif rentable

• Conservation ou réhabilitation en activité hôtelière ou coliving

Chaque plateau peut être vendu indépendamment, offrant une flexibilité d’investissement selon votre projet.

Bien à fort potentiel, idéal investisseurs ou marchands de biens. Travaux à prévoir pour révéler toute la rentabilité de cet immeuble.

Visite sur demande.

Honoraires d'agence à la charge du vendeur.

Information d'affichage énergétique sur ce bien : classe ENERGIE B indice 76 et classe CLIMAT A indice 2. Les informations sur les risques auxquels ce bien est exposé, y compris l'obligation légale de débroussaillement, sont disponibles sur le site Géorisques : http://www.georisques.gouv.fr.

La présente annonce immobilière a été rédigée sous la responsabilité éditoriale de Mme Vanessa Irain mandataire indépendant en immobilier (sans détention de fonds), agent commercial de la SAS I@D France immatriculé au RSAC de PERPIGNAN sous le numéro 843401738, titulaire de la carte de démarchage immobilier pour le compte de la société I@D France SAS.

Réf. 1992374 - 27/04/2026


DPE


Caractéristiques du bien à vendre

  • Prix :
    250 000 € (926 €/m²)

    Les honoraires sont à la charge du vendeur

    Simuler mon prêt
  • Surface habitable :
    270 m²
  • A rénover
Contactez-nous !

Demandez plus d'infos à IAD France

* Champs obligatoires

IAD France

1 Allée de la Ferme de Varatre.

77127 Lieusaint

SIREN: 503676421

Trouvez le bon bien immobilier à Perpignan

Voici des annonces similaires à votre recherche : Immeuble à vendre à Perpignan

Informations locales Perpignan

ESTIMATION

En 2 minutes estimez gratuitement votre bien avec ouestfrance-immo.com
J'estime mon bien

Immeuble à Perpignan