Votre Bureaux et commerces à Nantes avec ouestfrance-immo.

Vente Bureaux et commerces à Nantes

240㎡
dernier étage

643 200 € (2 680 €/m²)

Vente Bureaux et commerces à Nantes

240㎡
dernier étage

643 200 € (2 680 €/m²)

Bureaux et commerces Nantes

NANTES / Bureaux à vendre avec bail commercial en cours.

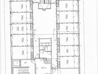
Bâtiment de 2012 / 4ème et dernier étage.

242 m² / Entrée (salle d’accueil) / 12 bureaux / Une salle de réunion / 2 parkings.

Bail de 10 ans (fin le 31 décembre 2034) depuis le 1er janvier 2025 avec période ferme de 6 années.

Révision triennale / Refacturation taxe foncière (6 776 euros) et charges (récupérables).

Loyer annuel HC / HT : 54 000 euros.

Prix FAI : 643 000 euros , dont 43 200 euros TTC d’honoraires d’agence à la charge de l’acquéreur (6% HT / 7,2% TTC).

Prix net vendeur : 600 000 euros.

Les informations sur les risques auxquels ce bien est exposé sont disponibles sur le site Géorisques : www.georisques.gouv.fr.

Réf. DGI2944 - 25/04/2026


DPE

NC
Catégorie N.C.
Le classement énergétique n'a pas été communiqué par l'annonceur :

Caractéristiques du bien à vendre

  • Prix :
    643 200 € (2 680 €/m²)

    prix du bien hors honoraires : 600 000 €

    Les honoraires sont à la charge de l'acquéreur

    Simuler mon prêt
  • Surface habitable :
    240 m²
  • dernier étage
Contactez-nous !

Demandez plus d'infos à Dattiche Gaveau Immobilier

* Champs obligatoires

Dattiche Gaveau Immobilier

1 rue de la Vieille Cure

44590 Saint-Vincent-des-Landes

SIREN: 821788791

Estimez vos mensualités Pour cette annonce de 643 200 €

Prix du bien
Apport
20,00 %
Estimation frais de notaire
8,00 %
Durée de prêt et taux d'intérêt
Estimation
3 268 €
Par mois
Affiner votre simulation de prêt immobilier avec le Crédit Agricole ?

Trouvez le bon bien immobilier à Nantes

Voici des annonces similaires à votre recherche : Bureaux et commerces à vendre à Nantes

Informations locales Nantes

ESTIMATION

En 2 minutes estimez gratuitement votre bien avec ouestfrance-immo.com
J'estime mon bien

Bureaux et commerces à Nantes