Vente maison 7 pièces
Vidauban 83
iad France - Hélène Viudes vous propose: VIDAUBAN – MAISON FAMILIALE + APPARTEMENT T2 INDÉPENDANT
FORT POTENTIEL – POSSIBILITÉ DE CRÉER 3 STUDIOS À FORTE RENTABILITÉ LOCATIVE
Située à Vidauban, cette propriété aux volumes généreux offre un potentiel exceptionnel : résidence principale, projet familial, investissement locatif ou activité mixte.
Elle se compose d’une maison principale spacieuse ainsi que d’un appartement T2 indépendant, avec la possibilité d’aménager jusqu’à 3 studios pour une excellente rentabilité locative.
MAISON PRINCIPALE :
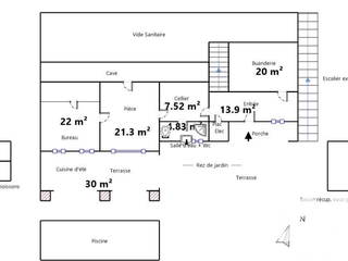
Vous découvrirez un superbe séjour avec cuisine ouverte de 62 m², baigné de lumière, ouvrant sur plusieurs terrasses et offrant un cadre de vie convivial et chaleureux.
Elle comprend également :
- 1 suite parentale avec :
- Dressing
- Salle de bain / salle d’eau avec baignoire + douche à l’italienne + double vasque
- WC indépendant
- 3 chambres
- 1 salle d’eau avec douche à l’italienne
- 2 WC indépendants
- 1 buanderie
- 1 bureau
APPARTEMENT T2 INDÉPENDANT :
Idéal pour recevoir, loger un proche ou générer des revenus locatifs.
Il se compose de :
- Séjour avec cuisine ouverte
- Mezzanine
- 1 chambre de 20 m²
- Salle d’eau avec WC
- Terrasse privative
EXTÉRIEURS :
Édifiée sur une belle parcelle de 1 940 m² en restanques, cette propriété bénéficie d’un environnement agréable et parfaitement aménagé.
Vous profiterez de :
- Piscine à débordement
- Cuisine d’été avec barbecue et point d’eau
- Garage de 28 m²
- Environ 6 places de stationnement
LES ATOUTS QUI FONT LA DIFFÉRENCE :
- Très beaux volumes
- Fort potentiel d’aménagement
- Possibilité de créer 3 studios
- Excellente rentabilité locative
- Espace piscine convivial
- Prestations de qualité
- Proximité des commodités
Que vous recherchiez une grande maison familiale, un bien avec revenus locatifs immédiats, ou un projet à fort rendement, cette propriété réunit tous les atouts.
À visiter sans tarder […] Voir l’annonce immobilière >>






















