Vente maison 8 pièces
Noirmoutier-en-l'Île 85
Cette maison de caractère et son annexe, totalisant plus de 290 m2 de bâti sur une parcelle privilégiée avec jardin, incarnent l'immobilier de prestige au coeur de Noirmoutier-en-l'Ile.
Située entre la place du marché et les rues piétonnes, cette propriété singulière se cache derrière une façade discrète pour offrir un calme absolu, rare en centre-ville.
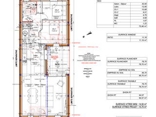
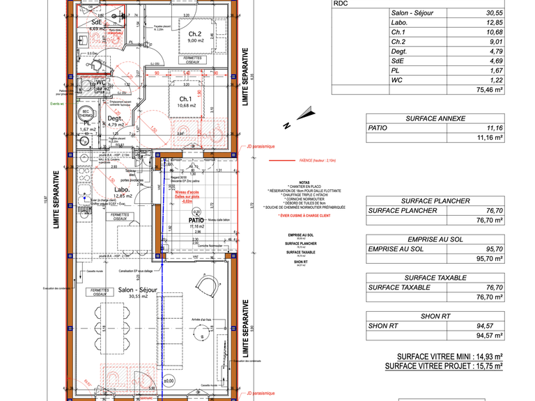
La demeure principale déploie environ 230m2 aux volumes généreux. Le rez-de-chaussée, baigné de lumière, s'organise autour d'espaces de vie fluides qui ne demandent qu'une rénovation créative pour révéler leur potentiel. L'étage accueille cinq chambres spacieuses et des pièces annexes, idéales pour l'aménagement de dressings ou de bureaux. L'architecture intérieure, vendue avec un projet d'architecte, permet d'imaginer une résidence de caractère où l'authenticité rencontre la modernité.
A l'extérieur, le jardin orienté plein sud est un véritable cocon piscinable. Un vaste garage indépendant de 67 m2, doté d'une grande hauteur sous plafond, complète cet ensemble immobilier atypique. Ce volume brut constitue un espace de stockage idéal pour les équipements nautiques ou un futur atelier d'artiste. L'environnement immédiat permet une vie tout à pied, à proximité immédiate des commerces et du port.
Ce bien rare sur le marché noirmoutrin séduit par ses possibilités d'aménagement infinies et son emplacement stratégique. Une découverte s'impose pour saisir toute la magie de ce lieu.
CLASSE ENERGIE : G / CLASSE CLIMAT […] Voir l’annonce immobilière >>


