Votre Vente maison à Nantes avec ouestfrance-immo.

Vente Maison à Nantes Zola

4 pcs
3 ch
84㎡

348 400 € (4 148 €/m²)

Vente Maison à Nantes Zola

4 pcs
3 ch
84㎡

348 400 € (4 148 €/m²)

Maison Nantes Zola

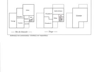
NANTES ZOLA, LEROY IMMOBILIER vous propose au calme d'une petite rue et proche tramway une Maison 1990 de 84 m2 sur une parcelle de terrain de 200m2 comprenant / Entrée avec WC, Cuisine de 10 m2 équipée et aménagée donnant sur garage traversant de 16m2 avec rangement au dessus., SEJOUR de 23 m2 avec poêle, Chambre ou bureau de 10m2,

A l'étage: Palier 4,5 m2 desservant 2 chambres de 10 et 12 m2 avec placards, Salle de bains de 8m2. Grenier 25 m2 au dessus. Jardin SUD avec dépendances.

Prix: 348 400€ honoraires agence inclus ( 4% TTC à la charge de l'acquéreur)

Les informations sur les risques auxquels ce bien est exposé sont disponibles sur le site Géorisques :

Réf. PLV1514 - 25/04/2026


DPE


Caractéristiques du bien à vendre

  • Prix :
    348 400 € (4 148 €/m²)

    prix du bien hors honoraires : 335 000 €

    Dont 4,00% à la charge de l'acquéreur (soit 13 400 €)

    Simuler mon prêt
  • Disponibilité :
    01/05/2026
  • Surface habitable :
    84 m²
  • Surface terrain :
    200 m²
  • Pièces :
    4
  • Chambres :
    3
  • Chambre au RDC :
    1
  • Salle de bain :
    1
  • Type stationnement :
    Garage
  • Exposition :
    Sud
  • Type cuisine :
    Cuisine aménagée et équipée
  • Internet :
    Fibre
  • Chauffage :
    Individuel Type gaz
  • À proximité des écoles, des commerces et des transports en commun
  • Parquet - Jardin - Dressing / Placard

Copropriété

  • Charges prévisionnelles :
    200 €
Contactez-nous !

Demandez plus d'infos à LEROY IMMOBILIER

* Champs obligatoires

LEROY IMMOBILIER

10 rue Pierre Gicquiau

44800 Saint-Herblain

SIREN: 908780463

Estimez vos mensualités Pour cette maison de 348 400 €

Prix du bien
Apport
20,00 %
Estimation frais de notaire
8,00 %
Durée de prêt et taux d'intérêt
Estimation
1 770 €
Par mois
Affiner votre simulation de prêt immobilier avec le Crédit Agricole ?

Trouvez la bonne maison à Nantes

Voici des annonces similaires à votre recherche : Maison à vendre à Nantes

Informations locales Nantes

ESTIMATION

En 2 minutes estimez gratuitement votre bien avec ouestfrance-immo.com
J'estime mon bien

Vente maison 4 pièces à Nantes