Votre Immeuble à Niort avec ouestfrance-immo.

Vente Immeuble à Niort

567㎡
Terr 1 050㎡
Pkg

615 000 € (1 085 €/m²)

Vente Immeuble à Niort

567㎡
Terr 1 050㎡
Pkg

615 000 € (1 085 €/m²)

Immeuble Niort

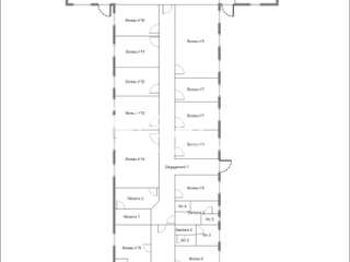
NIORT (79) – Bâtiment de plain-pied 567 m² avec permis de construire accordé – Changement de destination en 9 logements

Opportunité rare sur Niort.

Disponible à la vente un bâtiment de plain-pied d'une surface totale de 567 m², actuellement à usage de bureaux, bénéficiant d'un permis de construire accordé en juin 2025 pour sa transformation en 9 logements locatifs.

Le bâtiment est situé à Niort (79), dans un secteur résidentiel desservi. Sa configuration de plain-pied et son double accès latéral en font un bien particulièrement adapté à une exploitation locative optimisée, notamment pour une clientèle PMR.

Chaque lot dispose d'une pièce de vie, d'une ou plusieurs chambres, et d'une salle d'eau. Les plans architecturaux sont disponibles sur demande.

Le potentiel de revenus bruts annuels est estimé entre 80 000 € et 85 000 €, soit un rendement brut particulièrement attractif.

La taxe foncière annuelle est de 5 000 €.

Dossier technique complet disponible sur demande.

Les informations sur les risques auxquels ce bien est exposé sont disponibles sur le site Géorisques : www.georisques.gouv.fr

Prix de vente : 615 000 €

Honoraires charge vendeur

Contactez votre conseiller SAFTI : Pacôme AUDEBRAND,, - EI - Agent commercial immatriculé au RSAC de Niort sous le numéro 991039991

Réf. 1632643 - 29/04/2026


DPE

NS
kWh/m² .an

Caractéristiques du bien à vendre

  • Prix :
    615 000 € (1 085 €/m²)

    Les honoraires sont à la charge du vendeur

    Simuler mon prêt
  • Surface habitable :
    567 m²
  • Surface terrain :
    1050 m²
  • Salle d'eau :
    1
  • Type stationnement :
    Parking
  • Chauffage :
    Individuel Type gaz
  • Plain-pied
Contactez-nous !

Demandez plus d'infos à SAFTI

* Champs obligatoires

SAFTI

118 route d'Espagne

31000 Toulouse

SIREN: 523964328

Estimez vos mensualités Pour cette annonce de 615 000 €

Prix du bien
Apport
20,00 %
Estimation frais de notaire
8,00 %
Durée de prêt et taux d'intérêt
Estimation
3 125 €
Par mois
Affiner votre simulation de prêt immobilier avec le Crédit Agricole ?

Trouvez le bon bien immobilier à Niort

Voici des annonces similaires à votre recherche : Immeuble à vendre à Niort

Informations locales Niort

ESTIMATION

En 2 minutes estimez gratuitement votre bien avec ouestfrance-immo.com
J'estime mon bien

Immeuble à Niort