Votre Bureaux et commerces à Angers avec ouestfrance-immo.

Location Bureaux et commerces à Angers

868㎡

14 170 €

Location Bureaux et commerces à Angers

868㎡

14 170 €

Bureaux et commerces Angers

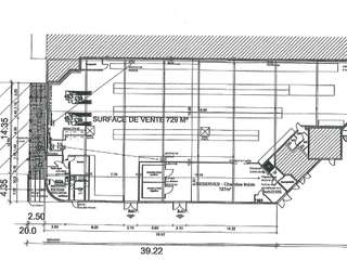
Implanté au sein d'un ensemble commercial dynamique comprenant un hypermarché et des commerces de proximité, ce local commercial développe une surface totale d'environ 868 m2 en rez-de-chaussée.

Il se compose d'une surface de vente d'environ 729 m2, complétée par des espaces de réserves, bureaux et sanitaires.

Le bâtiment est surmonté d'un R+1 occupé par une école de coiffure et d'esthétique, assurant une fréquentation régulière du site.

Les informations sur les risques auxquels ce bien est exposé sont disponibles sur le site Géorisques :

Réf. 6961 - 28/04/2026

Honoraires : 25 370 €

Dépôt de garantie : 41 930 €


DPE


Loyer

  • Loyer :
    14 170 €

    dont charges forfaitaires mensuelles

  • Dont charges :
    200 €

Caractéristiques du bien à louer

  • Surface habitable :
    868 m²
Contactez-nous !

Demandez plus d'infos à Thalassa Immobilier

* Champs obligatoires

Thalassa Immobilier

( 449 avis )

8 ALL DES EMBRUNS

44250 Saint-Brevin-les-Pins

SIREN: 407527100

Nos avis clients les plus récents

( 449 avis )

Vente d'un appartement sur le secteur de SAINT BREVIN L'OCEAN

Rapidité, écoute, réactivité, efficacité voici les principales qualités de Loick qui a conclu ma vente en 6 jours !!!

Vente d'une maison sur SAINT BREVIN L'OCEAN

Agence très professionnelle avec du personnel de confiance.

Acquisition d'un terrain sur la commune de SAINT BREVIN LES PINS

J’ai eu à faire à MR Guyot, sérieux, disponible, et à lecoute

Location T4 SAINT BREVIN LES PINS

Bon accueil et personnel compétent
Source Opinion System

Trouvez le bon bien immobilier à Angers

Voici des annonces similaires à votre recherche : Bureaux et commerces à louer à Angers

Informations locales Angers

ESTIMATION

En 2 minutes estimez gratuitement votre bien avec ouestfrance-immo.com
J'estime mon bien

Bureaux et commerces à Angers