Vente de terrain
Thurins 69
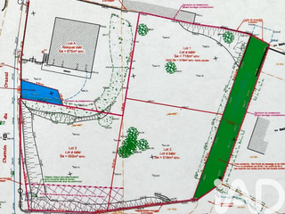
iad France - Véronique Carpin vous propose: Belle opportunité Thurins- Terrain 555 m² -LIBRE CONSTRUCTEUR- LOT 1 sur plan
Venez découvrir sur la commune de Thurins, proche du centre bourg et des transports en commun (TCL11 et 2ex) une parcelle de terrain non viabilisée d'une superficie de
555 m2.
Exposé Sud, ce terrain est hors lotissement et hors zone d'activité -
La viabilité se situe en bordure de terrain.
Honoraires d'agence à la charge du vendeur.
Bien non soumis au DPE. Les informations sur les risques auxquels ce bien est exposé, y compris l'obligation légale de débroussaillement, sont disponibles sur le site Géorisques : http://www.georisques.gouv.fr.
La présente annonce immobilière a été rédigée sous la responsabilité éditoriale de Mme Véronique Carpin mandataire indépendant en immobilier (sans […] Voir l’annonce immobilière >>




