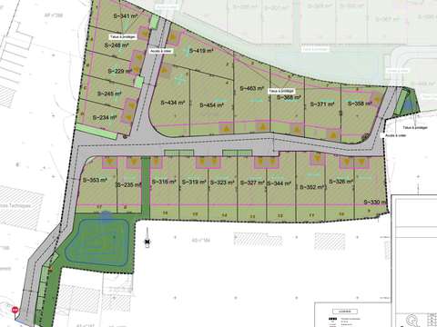
Vente de terrain
Ploubazlanec 22
Imaginez la maison de vos envies, orientée vers le Sud ou le Sud-Est pour profiter d'une vue dégagée vers la baie de Paimpol.
Le terrain rectangulaire, viabilisé et drainé, peut accueillir aussi bien une maison de plain pied que des niveaux inversés pour profiter encore mieux de la vue.
Situé en plein centre bourg mais en fond d'impasse. Il est à la fois au calme et à proximité immédiate des commerces, de l'école et d'un arrêt de bus. Paimpol est à cinq minutes en voiture et la plage à 1,2km. (5.11 % d'honoraires […] Voir l’annonce immobilière >>






