Vente de terrain
Lissieu 69
iad France - Pauline Velozzo vous propose: Très belle opportunité à saisir - LISSIEU limite Limonest - Secteur résidentiel et calme - Vue exceptionnelle!
Terrain plat et viabilisé de 1119 m² avec permis de construire obtenu - zone URI2B.
Localisation idéale, à proximité des commerces, écoles, transports....
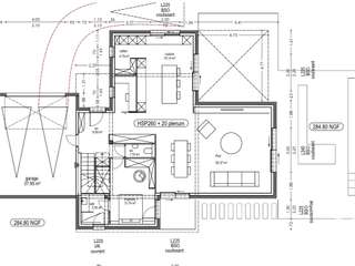
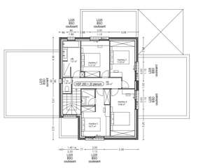
Architecte du projet : Martin&Martin - Prestations haut de gamme - RT2020 - Très belle orientation EST-SUD-OUEST
Permis pour une maison contemporaine d'habitation en R+1 d'une surface de plancher de 250 m² environ. Pièce à vivre de plus de 91 m², 6 chambres, sous-sol aménagé avec salle de sport, salle de cinéma, cave...
Garage (58 m²), piscine et poolhouse (35 m² environ).
ATOUT MAJEUR: Lancement de la construction possible dès le lendemain de l'acquisition!!
Photos non contractuelles
Honoraires d'agence à la charge du vendeur.
Bien non soumis au DPE. Les informations sur les risques auxquels ce bien est exposé, y compris l'obligation légale de débroussaillement, sont disponibles sur le site Géorisques : http://www.georisques.gouv.fr.
La présente annonce immobilière a été rédigée sous la responsabilité […] Voir l’annonce immobilière >>








