Vente de terrain
Dourdain 35
Le Cabinet Rolland et Girot vous propose ce terrain constructible idéalement situé en plein coeur de Dourdain.
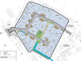
TERRAIN CONSTRUCTIBLE ? CENTRE BOURG DE DOURDAIN.
Emplacement privilégié au centre du bourg, avec un ancien atelier sur la parcelle.
Raccordements existants : électricité et point d'eau déjà disponibles.
Parcelle agréable et facile à aménager.
A seulement 35 minutes de Rennes.
Idéal pour un investisseur ou un projet de construction.
A visiter sans tarder.
Votre conseiller immobilier : Lionel COLLIN
Le Cabinet ROLLAND et GIROT : c'est 7 agences de proximité, Liffré, Saint-Aubin-d'Aubigné, Acigné, Noyal-sur-Vilaine, Saint-Aubin-du-Cormier, Betton, La Bouexiere.
Fort de 19 ans d'expérience, le Cabinet s'engage […] Voir l’annonce immobilière >>


