Programme Neuf 2 pièces
Angers La Fayette Eblé 49
Adresse prisée à deux pas de la gare et de la place Lafayette, au coeur d'un quartier recherché.
Nichée en second rideau, la résidence offre un calme rare, au sein d'un environnement exclusivement résidentiel de maisons, tout en bénéficiant de la proximité immédiate du tramway? sans aucune nuisance sonore.
Le cadre de vie est particulièrement privilégié : commerces de qualité, marché, restaurants, services et établissements scolaires accessibles à pied. Les déplacements sont fluides grâce au tramway facilitant un accès rapide au centre-ville .
A proximité, parcs, équipements sportifs et infrastructures culturelles viennent compléter un environnement harmonieux et vivant.
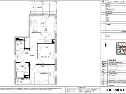
A VENDRE appartement Type T2 Neuf de 44,77m2 situé au RDC comprenant un séjour cuisine de 22,59m2 ouvert sur une terrasse de 5,45m2 prolongée d'un jardin privatif de 38,92m2 , une chambre de 11.09m2 et une salle d'eau et un WC séparé.
idéal investisseur ou Résidence principale
RE 2020
Prix: 184 000euros TTC (frais notaire réduits 2.5%)
(Prix direct promoteur)
REF: 35552LEC001
Informations auprès de Gwénaëlle GROU, spécialiste Neuf Centre-ville d'Angers, quartiers de la Gare, la Madeleine, Doutre, Lafayette, Visitation, place du lycée, Quinconce, Saint Léonard, Jeanne d'Arc ,Lac de Maine, Belle-beille, Avrillé, Saint Barthélemy […] Voir l’annonce immobilière >>


