Vente Immeuble à Tréguier
262 000 € (2 239 €/m²)
Vente Immeuble à Tréguier
262 000 € (2 239 €/m²)


Immeuble Tréguier
iad France - Pauline CARVENNEC vous propose: Bienvenue à Tréguier, au cOEur de la Bretagne, où l'histoire et le charme se rencontrent.
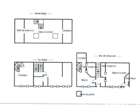
Cette authentique bâtisse en pierre de 117 m², répartis sur trois niveaux, est située au centre de cette « Petite Cité de Caractère ».
Cette monopropriété se compose de quatre appartements :
- Au rez-de-chaussée : Un studio entièrement rénové.
- En duplex : Un T2 à finir de rénover, actuellement occupé par un locataire à l'année.
- Au premier étage : Un studio lumineux avec pierres apparentes et un bel espace nuit.
- Sous les toits : Un dernier studio comprenant une salle de bain, un coin nuit et une agréable pièce de vie.
L’ensemble du bâtiment dispose de chauffages électriques individuels, ainsi que de compteurs d’eau et d’électricité indépendants pour chaque lot. Côté entretien, des travaux de toiture ont été réalisés récemment (faîtage et démoussage).
Venez découvrir le potentiel de cet immeuble plein de cachet.
Honoraires d'agence à la charge du vendeur.
Information d'affichage énergétique sur ce bien : classe ENERGIE D indice 223 et classe CLIMAT B indice 7. Les informations sur les risques auxquels ce bien est exposé, y compris l'obligation légale de débroussaillement, sont disponibles sur le site Géorisques : http://www.georisques.gouv.fr.
La présente annonce immobilière a été rédigée sous la responsabilité éditoriale de Mme Pauline CARVENNEC mandataire indépendant en immobilier (sans détention de fonds), agent commercial de la SAS I@D France immatriculé au RSAC de saint-bireuc sous le numéro 850439480, titulaire de la carte de démarchage immobilier pour le compte de la société I@D France SAS.
Réf. 1922695 - 26/04/2026
DPE
Caractéristiques du bien à vendre
- Surface habitable :117 m²
- Salle de bain :1
- Chauffage :Individuel Type electrique
Demandez plus d'infos à IAD France
Estimez vos mensualités Pour cette annonce de 262 000 €
(1) simulation non contractuelle communiquée à titre informatif en se basant sur les taux moyens du marché
(2) Sous réserve d'acceptation de votre dossier de prêt immobilier par votre Caisse régionale de Crédit Agricole, prêteur. S'agissant d'un prêt concernant l'acquisition ou la construction d’un logement, vous disposez d'un délai de réflexion de 10 jours pour accepter l'offre de prêt. La réalisation de la vente est subordonnée à l'obtention du prêt. Si celui-ci n'est pas obtenu, le vendeur doit vous rembourser les sommes versées.












