Vente Immeuble à Toulenne
400㎡
892 500 € (2 231 €/m²)
Vente Immeuble à Toulenne
400㎡
892 500 € (2 231 €/m²)


Immeuble Toulenne
iad France - Marlyse Lamade vous propose: IMMEUBLE DE RAPPORT 400 m² – RENTABILITÉ 6,5%
Emplacement stratégique proche de la commune de LANGON 33 | Rénovation + Extension
Opportunité rare pour investisseur ou marchand de biens : un ensemble immobilier mixte (bureaux et habitation) entièrement rénové, offrant une sécurité locative immédiate et un levier de croissance foncière exceptionnel.
Les informations sur les risques auxquels ce bien est exposé sont disponibles sur le site Géorisques :
Réf. 1948202 - 24/04/2026
DPE
NS
kWh/m² .an
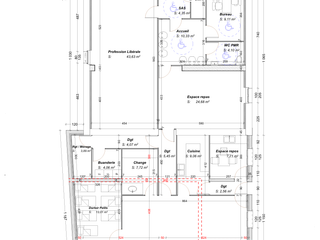
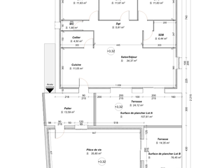
Caractéristiques du bien à vendre
- Surface habitable :400 m²
- Chauffage :Individuel Type electrique
Contactez-nous !
Demandez plus d'infos à IAD France













