Votre Bureaux et commerces à Herbignac avec ouestfrance-immo.

Vente Bureaux et commerces à Herbignac

1 pcs
92㎡
Panneaux solaires photovoltaiques

146 672 € (1 594 €/m²)

Vente Bureaux et commerces à Herbignac

1 pcs
92㎡
Panneaux solaires photovoltaiques

146 672 € (1 594 €/m²)

Bureaux et commerces Herbignac

PROCHAINEMENT – Village d'entreprises à Herbignac (44)

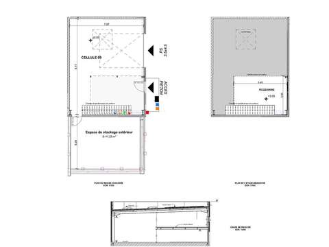
Presqu'île Investissement vous propose, à la vente et à la location, un village d'entreprises neuf situé au cœur de la ZAC de la Ville aux Prés, à Herbignac, dans un secteur dynamique bénéficiant d'une excellente accessibilité grâce aux grands axes routiers.

Ce programme comprend 9 cellules d'activités modulables, offrant des surfaces de 92 m² à 1 600 m², avec la possibilité de regrouper plusieurs lots pour atteindre 200, 400, 600, 1 000 m² et plus, selon vos besoins.

Un projet conçu pour les professionnels

Ce village d'entreprises répond parfaitement aux besoins des :

Artisans

Entreprises de services

Grossistes et distributeurs

PME/PMI en développement

Caractéristiques des cellules

Chaque cellule est livrée :

Brute de béton, pour un aménagement intérieur 100 % sur mesure

Avec fluides en attente, pour simplifier l'installation

Vitrine posée, offrant une belle visibilité et un accueil professionnel

Portes vitrées et lanterneaux vitrés pour une luminosité naturelle optimale

Le projet intègre également une toiture équipée de panneaux photovoltaïques, favorisant une performance énergétique durable et la réduction des charges.

Chaque cellule dispose de 4 places de stationnement privatives, idéales pour vos collaborateurs et vos clients.

Les informations sur les risques auxquels ce bien est exposé sont disponibles sur le site Géorisques :

Réf. p37l699 - 28/04/2026


DPE

NS
kWh/m² .an

Caractéristiques du bien à vendre

  • Prix :
    146 672 € (1 594 €/m²)

    Les honoraires sont à la charge de l'acquéreur

    Simuler mon prêt
  • Surface habitable :
    92 m²
  • Pièce :
    1
  • Panneaux solaires photovoltaiques
Contactez-nous !

Demandez plus d'infos à Presqu'île Investissement

* Champs obligatoires

Presqu'île Investissement

10 rue de la Briquerie

44350 Guérande

SIREN: 412182917

Estimez vos mensualités Pour cette annonce de 146 672 €

Prix du bien
Apport
20,00 %
Estimation frais de notaire
8,00 %
Durée de prêt et taux d'intérêt
Estimation
745 €
Par mois
Affiner votre simulation de prêt immobilier avec le Crédit Agricole ?

Trouvez le bon bien immobilier à Herbignac

Voici des annonces similaires à votre recherche : Bureaux et commerces à vendre à Herbignac

Informations locales Herbignac

ESTIMATION

En 2 minutes estimez gratuitement votre bien avec ouestfrance-immo.com
J'estime mon bien

Bureaux et commerces 1 pièce à Herbignac