Votre Vente terrain à Riantec avec ouestfrance-immo.

Vente Terrain à Riantec

313㎡

90 000 €

Vente Terrain à Riantec

313㎡

90 000 €

Terrain Riantec

Terrain à bâtir - 313 m² - Libre de constructeur

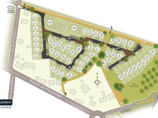
Situé entre la rue de la Fontaine et le lavoir de Kerberenne dans un cadre paisible et verdoyant, le lotissement "Les Lavandières vous offre un choix de terrains jusqu'à 550 m2.

Votre future maison en toute liberté !

Nos terrains libres de constructeur vous offrent la possibilité de construire la maison de vos rêves, qu'elle soit contemporaine, traditionnelle ou écologique, avec tous les avantages dans un environnement privilégié à Riantec :

Proximité des commodités : Écoles, collège, médiathèque, espace culturel, commerces, marché tous les mercredis, services de santé avec son hôpital et équipements sportifs. (piscine, centre hippique)

Qualité de vie : Un environnement serein, propice à la détente et à la vie familiale :

• La mer de Gâvres est un véritable trésor naturel qui séduit par sa beauté et ses atouts multiples, un environnement naturel préservé. Elle offre un cadre idyllique où dunes, plages et marais s'entrelacent pour créer des paysages à couper le souffle. Cet espace naturel protégé est un refuge pour une faune et une flore riche et diversifiée, idéal pour les amoureux de la nature.

• Activités de Plein Air que vous soyez amateur de randonnée, de vélo, de pêche à pied ou de sports nautiques, vous trouverez de quoi satisfaire vos envies. Les sentiers côtiers offrent des balades inoubliables avec des panoramas époustouflants sur l’océan, dont le mythique GR 34.

• Richesse Culturelle et Patrimoniale Gâvres est également riche en patrimoine avec ses fortifications, ses maisons traditionnelles de pêcheurs et son histoire maritime. Les visiteurs peuvent découvrir l’histoire locale à travers des sites emblématiques (chateau de Kerdurand) et des festivals culturels tout au long de l’année.

• Accessibilité : Située à quelques minutes de Lorient, Riantec bénéficie d'excellentes connexions routières et de transports en commun. (bus lignes 15 et 17 pour aller vers les plages, vers Port-Louis) ou profitez du bateau-bus, embarcardère de Locmiquélic reliant Lorient en quelques minutes !

Les informations sur les risques auxquels ce bien est exposé sont disponibles sur le site Géorisques :

Réf. LOT 3 - 28/04/2026


DPE

NS
kWh/m² .an

Caractéristiques du bien à vendre

  • Prix :
    90 000 €

    Les honoraires sont à la charge de l'acquéreur

    Simuler mon prêt
  • Surface terrain :
    313 m²
  • Type stationnement :
    Stationnement aérien
  • Exposition :
    Sud
  • À proximité des écoles, des commerces et des transports en commun
Contactez-nous !

Demandez plus d'infos à BATI AMENAGEMENT BRETAGNE

* Champs obligatoires

BATI AMENAGEMENT BRETAGNE

20, avenue Henri Fréville

35000 Rennes

SIREN: 884634718

Estimez vos mensualités Pour cette annonce de 90 000 €

Prix du bien
Apport
20,00 %
Estimation frais de notaire
8,00 %
Durée de prêt et taux d'intérêt
Estimation
457 €
Par mois
Affiner votre simulation de prêt immobilier avec le Crédit Agricole ?

Trouvez le bon bien immobilier à Riantec

Voici des annonces similaires à votre recherche : Terrain à vendre à Riantec

Informations locales Riantec

ESTIMATION

En 2 minutes estimez gratuitement votre bien avec ouestfrance-immo.com
J'estime mon bien

Vente de terrain à Riantec