Vente de terrain
Llupia 66
iad France - Christine Carval vous propose: Opportunité Rare
129000€
LLUPIA
Terrain Constructible de 464m² - Exposition Idéale Sud-Ouest
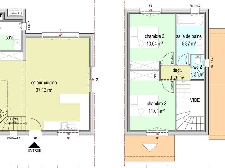
A proximité immédiate de Thuir, ce terrain de 464 m2 de construction libre en 4 faces plain pied ou un étage est déjà viabilisé.
Le projet aux normes RE 2020 peut-être adapté à vos goûts et besoins spécifiques.
Son emplacement privilégié vous permettra de profiter d'un cadre de vie paisible tout en restant proche des commodités du quotidien.
Contactez-moi pour des informations complémentaires et organiser une visite sur place.
Honoraires d'agence à la charge du vendeur.
Bien non soumis au DPE. Les informations sur les risques auxquels ce bien est exposé, y compris l'obligation légale de débroussaillement, sont disponibles sur le site Géorisques : http://www.georisques.gouv.fr.
La présente annonce immobilière a été rédigée sous la responsabilité éditoriale de Mme Christine Carval mandataire indépendant […] Voir l’annonce immobilière >>








