Vente Programme neuf Appartement à Avrillé
103 333 € (3 974 €/m²)
Vente Programme neuf Appartement à Avrillé
103 333 € (3 974 €/m²)
Programme neuf Appartement Avrillé
A la recherche d'un lieu de vie moderne aux portes d'Angers ? Découvrez cette nouvelle résidence idéalement située entre Avrillé et Angers.
Pensée pour répondre aux nouveaux modes de vie, elle propose une approche innovante de l'habitat et de l'investissement, avec des appartements prêts à vivre, entièrement meublés et équipés, au sein d'une architecture contemporaine élégante.
Vous profiterez également de prestations de type para-hôtelier, offrant confort et praticité au quotidien. Des commerces, une salle de sport en pied d'immeuble facilitent la vie de tous les jours, tandis qu'un rooftop aménagé avec terrain de paddle vient compléter ce cadre de vie unique.
La résidence bénéficie d'un emplacement privilégié : la majorité des commerces et services sont accessibles en moins de 10 minutes à pied ou en transports en commun. La ligne A du tramway se situe à seulement 2 minutes à pied Arrêt Plateau Mayenne , vous reliant rapidement au coeur d'Angers en 15 min.
Un cadre de vie idéal, alliant modernité, accessibilité et qualité de vie
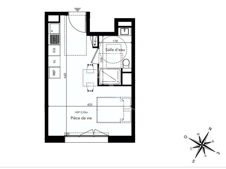
A VENDRE appartement T1 de 26,30m2 situé au 3ème étage , comprenant un séjour cuisine de 21,70m2 avec kitchenette aménagée et équipée, une salle d'eau avec WC.
Idéal investisseur Meublé
Prix: 103 333euros (+Frais de notaire 2.5%)
(Prix direct promoteur)
REF: 37283MatG307
Informations auprès de Gwénaëlle GROU, spécialiste neuf Angers, Trélazé, Avrillé , Les Ponts de Cé , St Barthélémy d'Anjou ...pour trouver votre solution immobilière en Résidence principale ou secondaire, Investissement LMNP ou LLI , dispositif Jean Brun, Location, Gestion immobilière.
Les informations sur les risques auxquels ce bien est exposé sont disponibles sur le site Géorisques : www.georisques.gouv.fr
Copropriété de 30 lots - dont 30 lots habitation.
Réf. 37283MatG307 - 27/04/2026
DPE
Caractéristiques du bien à vendre
- Surface habitable :26 m²
- Pièce :1
- Salle d'eau :1
- Étage :3ème étage sur 4
- Type cuisine :Cuisine équipée
- Ascenseur - dernier étage
Copropriété
- Copropriété :30 lots
Demandez plus d'infos à L'Adresse Angers Place dy Lycée
Estimez vos mensualités Pour cette annonce de 103 333 €
(1) simulation non contractuelle communiquée à titre informatif en se basant sur les taux moyens du marché
(2) Sous réserve d'acceptation de votre dossier de prêt immobilier par votre Caisse régionale de Crédit Agricole, prêteur. S'agissant d'un prêt concernant l'acquisition ou la construction d’un logement, vous disposez d'un délai de réflexion de 10 jours pour accepter l'offre de prêt. La réalisation de la vente est subordonnée à l'obtention du prêt. Si celui-ci n'est pas obtenu, le vendeur doit vous rembourser les sommes versées.
Trouvez le bon bien immobilier à Avrillé
Voici des annonces similaires à votre recherche : Programme-neuf à vendre à Avrillé
