Vente maison
Nantes Centre Ville 44
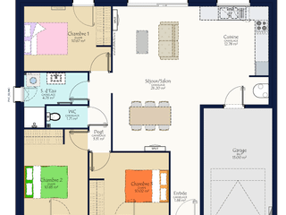
Découvrez cette opportunité exclusive dans le prisé quartier Schuman à Nantes : une maison design résolument contemporaine, offrant le luxe de la proximité du centre-ville et des écoles. Idéale pour une résidence principale, cette habitation de 5 pièces bénéficie d'une luminosité optimale et d'un agencement comprenant une entrée, un vaste Salon/Séjour ouvert sur une cuisine moderne, ainsi que 3 chambres (toutes avec placard), une salle de bain et des WC séparés. Le tout est posé sur une belle parcelle avec un jardin de 439 m², un atout rare en zone urbaine.
Coût de construction indicatif d'un projet de maison individuelle soumis au contrat protecteur du Code de la construction et de l'habitation (garanties financières et techniques du constructeur incluses). Voir détails en agence. Visuels non-contractuels. Prix à ajuster après visite terrain et selon vos choix définitifs. Hors droits de mutation, taxes locales, […] Voir l’annonce immobilière >>







