Votre Vente maison aux Sables-d'Olonne avec ouestfrance-immo.

Vente Maison à Olonne-sur-Mer

4 pcs
95㎡
Terr 180㎡

415 000 € (4 368 €/m²)

Vente Maison à Olonne-sur-Mer

4 pcs
95㎡
Terr 180㎡

415 000 € (4 368 €/m²)

Maison Olonne-sur-Mer

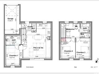
iad France - Caroline Louineau vous propose : OLONNE-SUR-MER – MAISON NEUVE – 3 CHAMBRES – PMR – GARAGE – TERRAIN CLOS

Dans un petit lotissement de 8 maisons en impasse, proche du golf et du centre-ville, maison neuve fonctionnelle et lumineuse .

Suite parentale au rez-de-chaussée (PMR possible), 2 chambres à l’étage avec salle de bain + WC séparés et mezzanine pouvant servir de bureau, salle de jeu.

Garage, terrain clos, et stationnement.

Contactez-moi pour plus d’informations !

Honoraires d’agence à la charge du vendeur. Bien non soumis au DPE. Les informations sur les risques auxquels ce bien est exposé sont disponibles sur le site Géorisques : www.georisques.gouv.fr. La présente annonce immobilière a été rédigée sous la responsabilité éditoriale de Mme Caroline Louineau EI (ID 69168), mandataire indépendant en immobilier (sans détention de fonds), agent commercial de la SAS I@D France immatriculé au RSAC de La-Roche-sur-Yon sous le numéro 913544326, titulaire de la carte de démarchage immobilier pour le compte de la société I@D France SAS.

Retrouvez tous nos biens sur notre site internet.

Réf. 1226737-4 - 28/04/2026


DPE

NS
kWh/m² .an

Caractéristiques du bien à vendre

  • Prix :
    415 000 € (4 368 €/m²)

    Les honoraires sont à la charge du vendeur

    Simuler mon prêt
  • Surface habitable :
    95 m²
  • Surface terrain :
    180 m²
  • Pièces :
    4
  • Salle de bain :
    1
  • Type stationnement :
    Garage
Contactez-nous !

Demandez plus d'infos à IAD France

* Champs obligatoires

IAD France

1 Allée de la Ferme de Varatre.

77127 Lieusaint

SIREN: 503676421

Estimez vos mensualités Pour cette maison de 415 000 €

Prix du bien
Apport
20,00 %
Estimation frais de notaire
8,00 %
Durée de prêt et taux d'intérêt
Estimation
2 109 €
Par mois
Affiner votre simulation de prêt immobilier avec le Crédit Agricole ?

Trouvez la bonne maison aux Sables-d'Olonne

Voici des annonces similaires à votre recherche : Maison à vendre aux Sables-d'Olonne

Informations locales Les Sables-d'Olonne

ESTIMATION

En 2 minutes estimez gratuitement votre bien avec ouestfrance-immo.com
J'estime mon bien

Vente maison 4 pièces aux Sables-d'Olonne