Votre Vente maison à Feneu avec ouestfrance-immo.

Vente Maison à Feneu

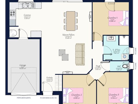
3 ch
88㎡
Terr 398㎡

235 200 € (2 673 €/m²)

Vente Maison à Feneu

3 ch
88㎡
Terr 398㎡

235 200 € (2 673 €/m²)

Maison Feneu

Construisez la maison idéale pour votre famille !

Vous rêvez d'une maison moderne, confortable et fonctionnelle pour votre famille ? Ne cherchez plus ! Nous vous proposons de construire votre maison sur mesure, alliant élégance et praticité.

- Spacieuse pièce de vie lumineuse et ouverte, idéale pour partager des moments conviviaux.

- 3 chambres confortables, parfaites pour chaque membre de la famille.

- Garage pour abriter votre véhicule et offrir un espace de stockage supplémentaire.

Maison de style traditionnel, avec des matériaux de qualité et un design épuré.

Faites de votre rêve une réalité et offrez à votre famille un cadre de vie exceptionnel !

Contactez-moi pour plus d'informations et découvrir les différentes options de personnalisation.

Patrice,

Coût de construction indicatif d'un projet de maison individuelle soumis au contrat protecteur du Code de la construction et de l'habitation (garanties financières et techniques du constructeur incluses). Voir détails en agence. Visuels non-contractuels. Prix à ajuster après visite terrain et selon vos choix définitifs. Hors droits de mutation, taxes locales, frais de raccordement. Terrain sélectionné auprès de partenaires fonciers pour la construction d'une maison neuve par ALLIANCE CONSTRUCTION (non mandatée pour réaliser la vente du terrain), sous réserve de disponibilité.

Les informations sur les risques auxquels ce bien est exposé sont disponibles sur le site Géorisques :

Réf. JLE249 - 23/04/2026


DPE


Caractéristiques du bien à vendre

  • Prix :
    235 200 € (2 673 €/m²)

    Les honoraires sont à la charge de l'acquéreur

    Simuler mon prêt
  • Surface habitable :
    88 m²
  • Surface terrain :
    398 m²
  • Chambres :
    3
  • Type stationnement :
    Garage
Contactez-nous !

Demandez plus d'infos à Alliance Construction Angers

* Champs obligatoires

Alliance Construction Angers

1 boulevard Saint-Michel

49000 Angers

SIREN: 503433484

Estimez vos mensualités Pour cette maison de 235 200 €

Prix du bien
Apport
20,00 %
Estimation frais de notaire
2,50 %
Durée de prêt et taux d'intérêt
Estimation
1 120 €
Par mois
Affiner votre simulation de prêt immobilier avec le Crédit Agricole ?

Trouvez la bonne maison à Feneu

Voici des annonces similaires à votre recherche : Maison à vendre à Feneu

Informations locales Feneu

ESTIMATION

En 2 minutes estimez gratuitement votre bien avec ouestfrance-immo.com
J'estime mon bien

Vente maison à Feneu