Vente Garage et parking à Marseille 9e
30 000 € (2 308 €/m²)
Vente Garage et parking à Marseille 9e
30 000 € (2 308 €/m²)


Garage et parking Marseille 9e
iad France - Céline Inaudi vous propose: Parking en sous-sol – Marseille 9ème – Proximité immédiate IPC
Située dans une résidence récente et sécurisée, secteur Sainte-Marguerite, cette place de stationnement en 1er sous-sol représente une opportunité d’investissement simple et efficace.
Idéalement positionnée à seulement 140 mètres de l’Institut Paoli-Calmettes, elle bénéficie d’un emplacement stratégique dans un secteur où la demande en stationnement est particulièrement soutenue.
Facile d’accès et bien configurée, elle offre un usage confortable au quotidien, recherché par les locataires ou pour un usage privatif.
Un produit adapté à l’investissement :
Forte demande locative liée à la proximité de l’hôpital
Gestion simple et peu contraignante
Ticket d’entrée accessible
Bien libre immédiatement
Dossier complet sur demande - contactez-moi
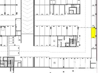
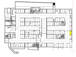
*Place représentée en jaune sur le plan
** Visuels non contractuels
La presente annonce immobiliere vise lot situé dans une copropriété de 207 lots au total et ne faisant l'objet d'aucune procédure en cours citée à l'article L. 721-1 du code de la construction et de l'habitation. Montant moyen mensuel de charges déclaré par le vendeur : € par mois (soit € annuel). Honoraires d'agence à la charge du vendeur.
Bien non soumis au DPE. Les informations sur les risques auxquels ce bien est exposé, y compris l'obligation légale de débroussaillement, sont disponibles sur le site Géorisques : http://www.georisques.gouv.fr.
La présente annonce immobilière a été rédigée sous la responsabilité éditoriale de Mme Céline Inaudi mandataire indépendant en immobilier (sans détention de fonds), agent commercial de la SAS I@D France immatriculé au RSAC de Avignon sous le numéro 532514403, titulaire de la carte de démarchage immobilier pour le compte de la société I@D France SAS.
Réf. 1987815 - 27/04/2026
DPE
Caractéristiques du bien à vendre
- Surface habitable :13 m²
- Type stationnement :Parking
- Interphone
Copropriété
- Copropriété :207 lots
Demandez plus d'infos à IAD France



