Divers ventes
Cherbourg-Octeville 50
CHERBOURG EN COTENTIN
MURS COMMERCIAUX A VENDRE EXCLUSIVITÉ !
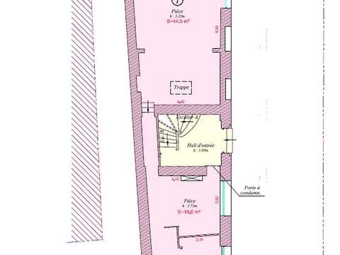
Dans un immeuble mixte, un local commercial (vide) d'environ 155 m² sur deux niveaux.
Au rez-de-chaussée, 85 m², et un étage de 70 m².
Pas de restauration possible.
Les informations sur les risques auxquels ce bien est exposé sont disponibles sur le site Géorisques : www.georisques. gouv.fr
REF: COM1081
Montant […] Voir l’annonce immobilière >>


