Vente appartement 4 pièces
Vif 38
iad France - Albine Bintz vous propose: T4 NEUF livré + TERRASSE de 26 m² - proche de toutes commodités
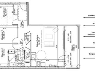
Je vous propose cet appartement de plus de 126 m² (111 m² carrez) situé au 3ème et DERNIER ETAGE avec ascenseur dans la très jolie résidence sécurisée Les prairies du Breuil (entourée d’une zone naturelle protégée) au coeur de Vif, à 20 mn en voiture de Grenoble.
Il est composé :
-d’une cuisine ouverte sur une spacieuse pièce de vie de 62 m² (50m² carrez), donnant sur une terrasse de plus de 26m² et offrant une belle et agréable vue sans vis-à-vis sur les massifs
-de 3 chambres dont une chambre avec sa salle d’eau et une avec un bel espace dressing
-d’une salle de bain
-d’un WC séparé
-d’une buanderie de 4 m²
-d’un cellier
Chaudière collective au bois et gaz (au sous-sol) avec compteur individuel dans chaque appartement
2 GARAGES de 17 m² et 18 m² sont proposés en plus (non compris dans le prix)
Emplacement pour les vélos
Parking libre devant pour recevoir
Les AVANTAGES et PRESTATIONS de l’appartement :
-Frais de notaires réduits 3%
-Garantie décennale
-Normes RT 2012
-Visiophone avec possibilité d’ouvrir la porte à distance par smartphone
-Thermostat programmable et pilotage possible avec votre smartphone
- BSO (brises soleil orientables) pour les baies vitrées et volets en aluminium pour les autres fenêtres avec fermeture électrique et centralisée
- Porte d’entrée 5 points
- Idéalement situé !!! à 2 mn à pied de toutes les commodités : transports, commerces (boulangerie, pharmacie, tabac, coiffeur, superette…)
Je vous attends pour une visite !
La presente annonce immobiliere vise 1 lot situé dans une copropriété de 74 lots au total et ne faisant l'objet d'aucune procédure en cours citée à l'article L. 721-1 du code de la construction et de l'habitation. Montant moyen mensuel de charges déclaré par le vendeur : 250€ par mois (soit 3000 € annuel). Honoraires d'agence à la charge du vendeur.
Information d'affichage énergétique […] Voir l’annonce immobilière >>










