Vente appartement 3 pièces
Sucé-sur-Erdre 44
Filumena vous propose en exclusivité ce charmant appartement T3 de plus de 65 m2, idéalement situé en plein cœur de Sucé-sur-Erdre, à proximité immédiate des commerces, écoles, transports et services. Cet emplacement recherché offre un cadre de vie à la fois pratique et agréable.
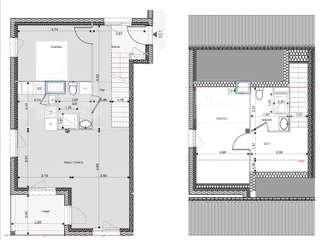
L’appartement, aux volumes généreux, se compose d’une belle pièce de vie lumineuse ouverte sur l’extérieur, d’une cuisine indépendante aménagée et équipée, de deux chambres, d’une salle d’eau ainsi que d’un WC indépendant.
Vous serez séduit par ses nombreux atouts : deux terrasses idéales pour vos moments de détente, un jardin privatif rare en centre-ville ainsi qu’une place de parking en sous-sol sécurisé.
Les charges de copropriété s’élèvent à 160 € par mois, eau comprise.
Libre de toute occupation, ce bien constitue une opportunité idéale, aussi bien pour une résidence principale que pour un investissement locatif.
À visiter sans tarder ! Pour plus d’informations ou organiser une visite, contactez-nous […] Voir l’annonce immobilière >>


