Vente appartement 2 pièces
Claix 38
iad France - Sarah Rozière vous propose : Appartement T2 avec terrasse à Claix.
Située Montée de la Croix Blanche à Claix, au sud de Grenoble, la résidence Effet Vercors offre un cadre de vie unique entre ville et nature, avec une vue imprenable sur le massif du Vercors. Ce programme conjugue architecture élégante, performance énergétique et douceur de vivre au cOEur d’un environnement verdoyant. Livraison prévue en 2027.
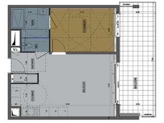
D’une surface de 41 m² environ habitables, cet appartement T2 situé en rez-de-chaussée surélevé se prolonge par une terrasse de 11 m² environ. Il comprend un séjour/cuisine de 21 m² environ, une chambre confortable et une salle d’eau moderne.
Un cellier, une place de parking extérieure et une place de parking intérieure complètent le bien. Le chauffage et la production d’eau chaude sont assurés par une pompe à chaleur individuelle vecteur air, garantissant confort et économies d’énergie.
AUTRES T2 DISPONIBLES À PARTIR DE 220 000 € – Plans et demande d'informations sur simple contact
Nichée dans un cadre résidentiel paisible, la résidence Effet Vercors se distingue par son architecture contemporaine et son intégration harmonieuse au paysage. Entourée d’espaces verts, elle a été pensée pour offrir un quotidien serein et pratique : bâtiments à taille humaine, stationnements sécurisés, celliers privatifs et espaces communs paysagers.
Les habitants profitent d’un emplacement privilégié : le centre-bourg et ses commerces sont accessibles en 8 minutes à pied, le bus 21 (arrêt La Chièze) se situe à 350 m, et la gare TER de Pont-de-Claix à seulement 3 minutes en voiture. Les écoles, collège, médiathèque et équipements sportifs se trouvent à proximité immédiate, tout comme les espaces naturels : Parc de la Ronzy, Fort de Comboire et réserve naturelle du Peuil.
Acheter dans le neuf, c’est bénéficier de frais de notaire réduits, de garanties constructeur et d’un logement conforme aux dernières normes thermiques et acoustiques. Vous pouvez […] Voir l’annonce immobilière >>









