Vente appartement 2 pièces
Avrillé 49
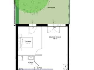
Retour à la vente avec une surface Extérieure
Situé 107 AVENUE PIERRE MENDÈS-FRANCE, au sein d'une résidence contemporaine à l'architecture soignée, ce appartement de 2 pièces développe une surface de 44 m² et offre un cadre de vie pensé pour conjuguer confort, fonctionnalité et qualité de vie au quotidien.
L'agencement intérieur a été étudié avec attention afin de proposer des volumes équilibrés et une circulation agréable. Le logement comprend une entrée, un séjour lumineux avec cuisine ouverte, idéal pour partager des moments conviviaux dans un espace de vie moderne et chaleureux.
une chambre
une salle de bain et un wc séparé
Les prestations ont été sélectionnées avec exigence afin d'assurer un niveau de confort durable : matériaux de qualité, optimisation de la lumière naturelle, conception tournée vers le bien-être des occupants et respect des dernières normes en vigueur.
Côté extérieur, vous profitez de :
un jardin 41,59
un parking inclus
La résidence bénéficie d'un emplacement pratique, à proximité immédiate des commerces, transports, établissements scolaires, services et principaux axes de déplacement, tout en conservant un environnement agréable et recherché. Cet équilibre entre accessibilité et sérénité en fait une adresse particulièrement adaptée à un projet de résidence principale comme à un investissement de qualité.
Disponibilité prévisionnelle : 2027T1.
Ce bien répond aux dernières normes environnementales RE2020. Le bâtiment basse consommation bénéficie d'un DPE A/B, garantissant une meilleure maîtrise des dépenses énergétiques ainsi qu'un confort thermique optimal été comme hiver.
Les […] Voir l’annonce immobilière >>




