Vente appartement 2 pièces
Aussois 73
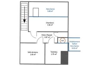
iad France - Sophie Gaspar vous propose: AUSSOIS - RÉSIDENCE 3* LES FLOCONS D'ARGENT - SANS BAIL COMMERCIAL AU 30 AVRIL 2026 - APPARTEMENT T2 - 4 COUCHAGES - EN DUPLEX comprenant au rez de chaussée : une pièce de vie avec un coin cuisine. Au 1er étage : une chambre, une salle de bain et un WC séparé.
Un balcon d'environ 4,30 m² orienté Ouest.
Parking extérieur.
Les demandes de renseignements et de rendez-vous de visite se font uniquement par téléphone.
La presente annonce immobiliere vise 1 lot situé dans une copropriété de 318 lots au total et ne faisant l'objet d'aucune procédure en cours citée à l'article L. 721-1 du code de la construction et de l'habitation. Montant moyen mensuel de charges déclaré par le vendeur : 70€ par mois (soit 840 € annuel). Honoraires d'agence à la charge du vendeur.
Information d'affichage énergétique sur ce bien : classe ENERGIE F indice 391 et classe CLIMAT C indice 12. Les informations sur les risques auxquels ce bien est exposé, y compris l'obligation légale de débroussaillement, sont disponibles sur le site Géorisques : http://www.georisques.gouv.fr.
La présente annonce immobilière a été rédigée sous la responsabilité […] Voir l’annonce immobilière >>















