Vente de terrain
Valmont 76
iad France - Jérôme GUYOT vous propose : TERRAIN A BÂTIR a vendre dans la commune de VALMONT.
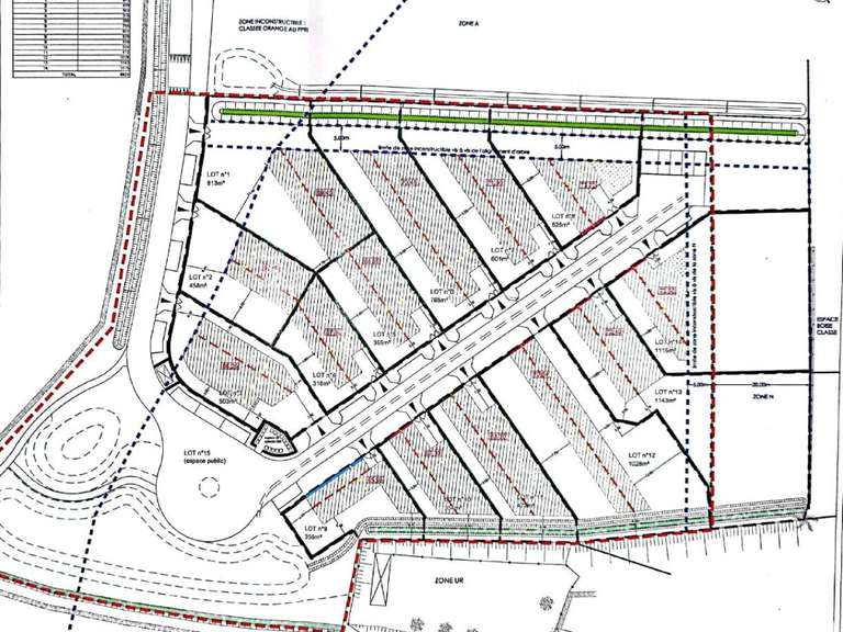
Dans le cadre de l'aménagement d'un lotissement de 14 lots de terrains à bâtir , 2 lots sont disponibles à acheter entièrement viabilisés de 1115m² environ et 1143m² environ.
Pour chaque lot :
- Viabilisation des parcelles pour l'ensemble des réseaux ( électricité, télécommunications, AEP, eaux usées et pluviales) avec intégration des coffrets électriques dans la clôture et la haie.
- Fourniture d'une cuve béton de récupération des eaux de pluies
- Fourniture et pose d'une clôture et haie entre les limites privées et public de chaque parcelle.
- Fourniture et pose d'un portail.
-Entrée charretière en béton.
Me contacter par téléphone pour vous positionner.
Pas sérieux s'abstenir.
Honoraires d’agence à la charge du vendeur. Bien non soumis au DPE. Les informations sur les risques auxquels ce bien est exposé sont disponibles sur le site Géorisques : www.georisques.gouv.fr. La présente annonce immobilière a été rédigée sous la responsabilité éditoriale de M. Jérôme GUYOT EI (ID 22706), mandataire indépendant […] Voir l’annonce immobilière >>





