Vente de terrain
La Ferrière-aux-Étangs 61
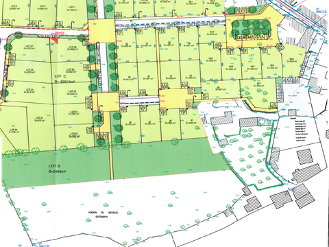
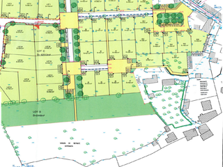
À vendre, beau terrain constructible situé à La Ferrière-aux-Étangs, offrant un fort potentiel d’aménagement.
Le bien comprend une ancienne maison à rénover entièrement, déjà raccordée en eau et en électricité. Une dépendance est également présente sur le terrain, offrant des possibilités supplémentaires de stockage ou d’aménagement.
Les permis de construire sont déjà accordés, ce qui facilite vos projets futurs.
Le tout sur une parcelle d’environ 2 800 m², idéale pour un projet de rénovation ou de construction.
Atouts :
Terrain constructible
Maison existante à rénover entièrement
Eau et électricité déjà raccordées
Dépendance sur le terrain
Permis de construire accordés
Grande parcelle de 2 800 m²
Produit rare sur le secteur, à visiter rapidement.
Les informations sur les risques auxquels ce bien est exposé sont disponibles sur le site Géorisques […] Voir l’annonce immobilière >>




