Vente de terrain
Chantrigné 53
À proximité de Mayenne et de Lassay-les-Châteaux, la commune bénéficie de leurs services de santé, infrastructures scolaires et de toutes les commodités.
Le lotissement est situé à seulement 400 mètres de l’école primaire de la commune.
Vous trouverez à Chantrigné une école, un bar-restaurant ainsi qu’une épicerie.
Prix : 12020.4 €.
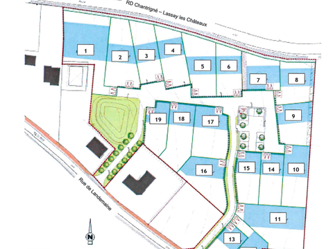
Sur ce terrain de 477 m² à CHANTRIGNE, MAISONS SOCOREN vous propose de réaliser votre projet de construction de maison individuelle.
MAISONS SOCOREN propose de construire votre maison neuve avec toutes les prestations suivantes :
- Plan sur-mesure et personnalisé
- Mode de chauffage au choix
- Grands choix d`équipements et de prestations
- Matériaux de qualité selon les normes en vigueur
- Accompagnement dans le choix et l’acquisition du terrain
- Construction conforme à la nouvelle RE 2020
Demandez une étude gratuite et personnalisée de votre projet de construction sur ce terrain !
Contactez Thomas LEZE au O6 84 88 09 99 ou au O2 43 59 72 22 (Maisons […] Voir l’annonce immobilière >>


