Bureaux et commerces 5 pièces
La Ferté-Bernard 72
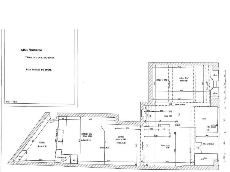
Dépendant d'un immeuble situé à la FERTE BERNARD un local comprenant : un hall d'entrée, un secrétariat, une salle d'attente, trois bureaux, une salle d'archives, toilettes et vestiaire. Superficie : 86 m2
ACCES PMR
L'accès audit immeuble se faisant par une cour privative donnant sur l'avenue de la République, à l'extrémité de laquelle se trouve un jardinet.
Chauffage électrique individuel par convecteurs. Eau froide par décompteur.
Loyer mensuel […] Voir l’annonce immobilière >>
