Votre Bureaux et commerces à Alençon avec ouestfrance-immo.

Location Bureaux et commerces à Alençon

11 pcs
255㎡
Pkg

3 500 €

Location Bureaux et commerces à Alençon

11 pcs
255㎡
Pkg

3 500 €

Bureaux et commerces Alençon

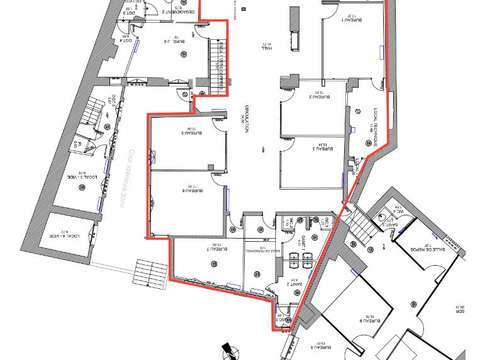
Votre agence Lair Immobilier Commerce et Entreprise d'Alençon vous propose à la location un plateau de bureaux d'environ 255 m2 au rez-de-chaussée d'un bel immeuble, disposant d'un accès PMR et de 4 places de parking privatives. Idéalement situé dans l'hypercentre d'Alençon, à proximité des transports urbains et avec un accès facile, ce plateau de bureaux bénéficie d'une excellente visibilité et d'une situation idéale, parfaite pour des activités de services, tertiaires, médicales ou paramédicales.

Pour plus de renseignements, contactez-nous.

Les informations sur les risques auxquels ce bien est exposé sont disponibles sur le site Géorisques :

Réf. 13069 - 25/04/2026

Dépôt de garantie : 7 000 €


DPE

NC
Catégorie N.C.
Le classement énergétique n'a pas été communiqué par l'annonceur :

Loyer

  • Loyer :
    3 500 €

    dont charges forfaitaires mensuelles

Caractéristiques du bien à louer

  • Surface habitable :
    255 m²
  • Pièces :
    11
  • Type stationnement :
    Parking
  • Chauffage :
    Individuel
  • À proximité des commerces
  • Accès PMR
Contactez-nous !

Demandez plus d'infos à Lair Immobilier Commerce & Entreprise

* Champs obligatoires

Lair Immobilier Commerce & Entreprise

66 rue aux Sieurs

61000 Alençon

SIREN: 489571489

Trouvez le bon bien immobilier à Alençon

Voici des annonces similaires à votre recherche : Bureaux et commerces à louer à Alençon

Informations locales Alençon

ESTIMATION

En 2 minutes estimez gratuitement votre bien avec ouestfrance-immo.com
J'estime mon bien

Bureaux et commerces 11 pièces à Alençon